 
                  		
                  	                  		
                  			Advertisement
																								 
											
                  	
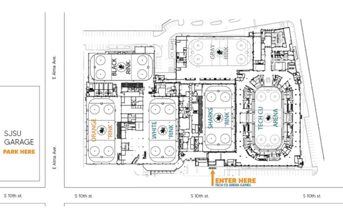
                    📍 Venue: Blue Arena at The Ranch Events Complex
🏠 Address: 5290 Arena Circle, Loveland, CO 80538
🌆 City: Loveland
📍 Location: 40.4436, -104.99🌟 Step into a world of wonder at Parking San Jose Barracuda at Colorado Eagles, where extraordinary moments await! 🏛️ Located at Blue Arena at The Ranch Events Complex in dynamic Loveland, CO, this event will become the talk of the town. 📅 Join us on November 29th, 2025 at 10:05 PM for a celebration that defies the ordinary. ✨ This curated experience brings together the best of entertainment, culture, and community spirit. Every detail has been thoughtfully planned to ensure an unforgettable experience for all our guests. 🎯 Take advantage of this opportunity to be part of something special. 🎊 Early registration is recommended as space is limited!
                  			Advertisement
																								 
											
                  	
                    Event Venue & Nearby Stays
Blue Arena at The Ranch Events Complex, 5290 Arena Circle, Loveland, CO 80538, US, United States
								    Tickets
								
							 
								
									Concerts, fests, parties, meetups - all the happenings, one place. 
								
							








